詳細說明:
立井單繩罐籠一般用于礦井的副井,作為提升人員、矸石、設備、材料等用。對于小型礦井,也可用于主井,作提升煤炭、礦石之用。
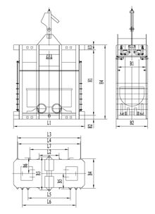
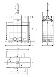
單繩罐籠由楔形連接裝置,抓捕器、罐體、罐內阻車器、導向裝置組成,如用于上下人,則必須設置斷繩保險器(防墜器),抓捕器根據制動繩布置形式可分為I型(對稱)抓捕和II型(對角)抓捕形式。常用單繩罐籠及配套防墜器的具體型號參數見附表。
安裝與調試
罐籠的安裝與調試由用戶負責。用戶應根據本礦井的具體情況,認真制訂安裝大綱,并采取嚴密的安全措施。試運轉檢查出的制造問題由制造廠負責處理。
1、安裝前應對罐籠作以下幾個方面的檢查:
⑴罐籠安裝前應先檢查外觀質量是否有明顯缺陷;鉚釘是否有漏鉚或不合格現象;高強度螺栓的連接是否有不合格現象。
?、茩z查罐籠的主吊桿與楔型繩卡連接尺寸是否正確。
?、菣z查罐籠內的運動部件,如阻車器等應動作靈活到位、無卡阻現象。
?、确缐嬈魇枪藁\的重要安全裝置,罐籠掛罐前應仔細認真檢查抓捕器各部件動作是否靈活,調整是否到位,確認無誤后再掛罐。
?、蓲旃藓髴獓栏癜凑铡睹旱V保安規程》及《防墜器使用說明書》的要求進行防墜試驗。試驗合格后,罐籠方可以投入運轉。
2、運行試驗
⑴罐籠現場空載運轉時間不應低于8h,其主要判定項目包括:
a.罐籠的重心應與提升中心一致,并用增減平衡塊進行平衡調整;
b.罐籠在井筒罐道中運行應平穩,阻車器開閉應靈活可靠。
?、乒藁\現場重載運轉時間不應少于8h,其主要判定項目包括;
a.重載罐籠的重心應與提升中心一致;
b.罐籠到位后阻車器的開閉裝置應準時靈活打開;

小型礦井單繩罐籠

小型礦井單繩罐籠

小型礦井單繩罐籠

基本參數、主要尺寸
上一個:木罐道罐籠 丨 下一個:冶金系列多繩罐籠 返回列表